房屋建筑学试题(7)卷
一、 填空题:本大题共10个空,每空2分,共20分。
1. 建筑物按照它的使用性质,通常可分为: 、 、 ;
2.构件的燃烧性能分为 、 、 三类 ;
3.建筑按耐火等级分类分为 级。
4. 是建筑地面以下的承重构件,是建筑的下部结构。它承受建筑物上部结构传下来的全部荷载,并把这些荷载连同本身的重量一起传到地基上。 则是承受由基础传下的荷载的土层。直接承受建筑荷载的土层为 。持力层以下的土层为 。
5. 基础的埋深,在满足要求的情况下愈浅愈好,但最小不能小于 。天然地基上的基础,一般把埋深 的叫浅基础。埋深 的叫深基础。当基础 时称为不埋基础。
6. 砌筑砂浆通常使用的有水泥砂浆、石灰砂浆、混合砂浆和粘土砂浆。砌筑地下室的砖墙时,宜选 砂浆;砌筑地上砌体时,宜采用 砂浆。
7. 根据使用的材料不同,楼板分 、 、 等。
8. 钢筋混凝土楼板根据施工方法不同可分为 、 、
三种。
9. 铝合金门窗是以其 来称谓的。
10. 建筑火灾发展的三个阶段是: 、 、 ;
11. 民用建筑平面组合常用的方式有 、 、 、
。
二、单项选择题(本大题共10小题,每小题2分,共20分。)
1. 房屋一般由( )组成。
A: 基础、楼板、地面、楼梯、墙(柱)、屋顶、门窗
B: 地基、楼板、地面、楼梯、墙(柱)、屋顶、门窗
C: 基础、楼地面、楼梯、墙、柱、门窗
D: 基础、地基、楼地面、楼梯、墙、柱、门窗
2. 建筑技术条件是指( )。
A: 建筑结构技术、建筑材料技术、建筑构造技术
B: 建筑结构技术、建筑材料技术、建筑施工技术
C: 建筑结构技术、建筑环保技术、建筑构造技术
D: 建筑结构技术、建筑构造技术、建筑施工技术
3. 影响建筑构造的因素有( )。
A: 外界环境、建筑技术条件、建筑材料
B: 外界环境、建筑施工条件、建筑标准
C: 外界环境、建筑技术条件、建筑标准
D: 外界环境、建筑施工条件、建筑标准
4. 影响建筑构造的外界环境因素有( )。
A: 外界作用力、人为因素、地表影响
B: 外界作用力、气候条件、地表影响
C: 火灾的影响、人为因素、气候条件
D: 外界作用力、人为因素、气候条件
5. 墙体按受力情况分为( )。①山墙 ②承重墙 ③非承重墙 ④内墙 ⑤空体墙
A: ①④⑤
B: ②⑤
C: ③④
D: ②③
6. 在一般民用建筑中,小开间横墙承重结构的优点有( )。①空间划分灵活 ②房屋的整体性好 ③结构刚度较大 ④有利于组织室内通风
A: ①③④
B: ①②③
C: ②③④
D: ①④
7. 在墙体设计中,为简化施工,避免砍砖,凡墙段长度在1500mm以内时,应尽量符合砖模即( )。
A: 115mm
B: 120mm
C: 125mm
D: 240mm
8. 钢筋砖过梁两端的砖应伸进墙内的搭接长度不小于( )mm。
A: 20
B: 60
C: 120
D: 240
9. 隔墙自重由( )承受。①柱 ②墙 ③楼板 ④小梁 ⑤基础
A: ①③
B: ③④
C: ③
D: ①⑤
10. 刚性基础的受力特点是( )。
A: 抗拉强度大、抗压强度小
B: 抗拉、抗压强度均大
C: 抗剪切强度大
D: 抗压强度大、抗拉强度小
11. 当设计最高地下水位( )地下室地坪时,一般只做防潮处理。
A:高于
B: 高于300MM
C: 低于
D: 高于100MM
12. 普通粘土砖的规格为( )。
A: 240mm×120mm×60mm
B: 240mm×110mm×55mm
C: 240mm×115mm×53mm
D: 240mm×115mm×55mm
13. 墙脚采用()等材料,可不设防潮层。①粘土砖 ②砌块 ③条石 ④混凝土
A: ①③④
B: ②③⑤
C: ①②④
D: ③④
14. 当门窗洞口上部有集中荷载作用时,其过梁可选用( )。
A: 平拱砖过梁
B: 拱砖过梁
C: 钢筋砖过梁
D: 钢筋混凝土过梁
15. 下列哪种做法属于抹灰类饰面( )。
A: 陶瓷锦砖面
B: 塑料壁纸面
C: 水磨石面
D: 大理石面
16. 根据使用材料的不同,楼板可分为( )。
A: 木楼板、钢筋混凝土楼板、压型钢板组合楼板
B: 钢筋混凝土楼板、压型钢板组合楼板、空心板
C: 肋梁楼板、空心板、压型钢板组合楼板
D: 压型钢板组合楼板、木楼板、空心板
17. 根据钢筋混凝土楼板的施工方法不同可分为()。
A: 现浇式、梁板式、板式
B: 板式、装配整体式、梁板式
C: 装配式、装配整体式、现浇式
D: 装配整体式、梁板式、板式
18. 常用的预制钢筋混凝土楼板,根据其截面形式可分为()。
A: 平板、组合式楼板、空心板
B: 槽形板、平板、空心板
C: 空心板、组合式楼板、平板
D: 组合式楼板、肋梁楼板、空心板
19. 现浇肋梁楼板由()现浇而成。
A: 混凝土、砂浆、钢筋
B: 柱、次梁、主梁
C: 板、次梁、主梁
D: 砂浆、次梁、主梁
20. 地面按其材料和做法可分为()。
A: 水磨石地面;块料地面;塑料地面;木地面
B: 块料地面;塑料地面;木地面;泥地面
C: 整体地面;块料地面;塑料地面;木地面
D: 刚性地面;柔性地面
21. 楼梯踏步防滑条应突出踏步面()
A: 1~2mm
B: 5mm
C: 3~5mm
D: 2~3mm
22. 平屋顶的排水坡度一般不超过(),最常用的坡度为( )。
A: 10%,5%
B: 5%,1%
C: 3%,5%
D: 5%,2%~3%
23. 组合式钢门窗是由()组合而成的。
A:基本窗和窗扇
B:基本窗和基本窗
C:基本窗和拼料
D:基本窗和横拼料
24. 建筑是指()的总称。
A: 建筑物
B: 构筑物
C: 建筑物,构筑物
D: 建造物,构造物
25. 构成建筑的基本要素是()。
A: 建筑功能,建筑技术,建筑用途
B: 建筑功能,建筑形象,建筑用途
C: 建筑功能,建筑规模、建筑形象
D: 建筑功能,建筑技术,建筑形象
26. 建筑技术包括()。
A: 建筑材料与制品技术, 结构技术, 施工技术, 电气技术
B: 结构技术, 施工技术,建筑材料与制品技术
C: 施工技术, 设备技术, 电气技术, 建筑材料与制品技术
D: 设备技术, 施工技术, 电气技术, 建筑材料与制品技术
27. 建筑物按照使用性质可分为()。①工业建筑②公共建筑③民用建筑④农业建筑
A: ①②③
B: ②③④
C: ①③④
D: ①②④
28. 判断建筑构件是否达到耐火极限的具体条件有()。①构件是否失去支持能力②构件是否被破坏③构件是否失去完整性④构件是否失去隔火作用⑤构件是否燃烧
A: ①③④
B: ②③⑤
C: ③④⑤
D: ②③④
29. 现浇肋梁楼板由()现浇而成。
A: 混凝土、砂浆、钢筋
B: 柱、次梁、主梁
C: 板、次梁、主梁
D: 砂浆、次梁、主梁
30. 楼板层通常由()组成.
A: 面层;楼板;地坪
B: 面层;楼板;顶棚
C: 支撑;楼板;顶棚
D: 垫层;梁;楼板
三、简答题(本大题共4小题,共20分)
1.建筑的含义是什么?构成建筑的基本要素是什么?
2.什么叫构件的耐火极限?
3. 建筑物耐久等级如何划分?
4.简述外界环境对建筑物影响的三个方面?
5.天然地基和人工地基有什么不同?
6.什么叫基础的埋置深度?影响它的因素有哪些?
7.过梁的作用是什么?常见过梁有哪几种?
8.简述墙面装修的种类。
9.简述踢脚线的位置、材料、高度。
10. 楼地面按其材料和做法可分为哪几类?
11. 屋顶隔热降温的主要方法有哪些?
12. 可以采取哪些措施预防混凝土刚性防水屋面开裂?
13. 什么叫防火分区?
14. 建筑火灾蔓延的途径有哪些?
15. 建筑设计的主要依据是什么?
四、设计运用题(每题10分共30分)
1. 某三层公共建筑开间3300mm,进深5100mm,层高3300mm,开敞式楼梯,见设计题图1。内墙240mm,轴线居中,外墙360mm,轴线外侧为240mm,内侧为120mm,室内外高差450mm。楼梯间不通行。试绘出楼梯间一、二层、三层平面图及剖面图,列出计算过程,标注必要标高和尺寸。

设计题1图 楼梯间开间和进深
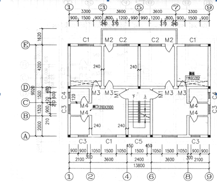
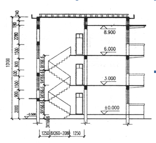
2. 某住宅楼的楼层平面和剖面如图,楼板采用120mm厚预制空心楼板,横墙承重。要求:
(1)按有组织排水设计该住宅楼的屋顶平面图(1:100):画出坡面交线、檐沟、雨水口等;标注屋面排水坡度和天沟纵向坡度。标注各转角处的定位轴线和编号。
(2)按卷材防水屋面,材料找坡方式,设计檐沟构造。

设计题2图a 楼层平面图

设计题2图b 剖面图
