学习要求:掌握屋面的类型和设计要求,掌握屋面排水组织设计的基本原则与方式,掌握平屋面构造,掌握坡面的构造,掌握卷材防水屋面构造,掌握瓦屋面的构造,掌握吊顶棚构造。
重 点:掌握屋面的类型和设计要求,掌握屋面排水组织设计的基本原则与方式,掌握平屋面构造,掌握坡面的构造。
难 点:掌握屋面排水组织设计的基本原则与方式。
6.1屋面的类型和设计要求
1.屋面的类型
(1)平屋面
平屋面通常是指排水坡度小于5%的屋面,常用坡度为2%~3%。


平屋面的形式
(a)挑檐;(b)女儿墙;(c)挑檐女儿墙;(d)盝(盒)顶
(2)坡屋面
坡屋面通常是指屋面坡度大于10%。


坡屋面的形式
(a)单坡顶;(b)硬山两坡顶;(c)悬山两坡顶;(d)四坡顶;
(e)卷棚顶;(f)庑殿顶;(g)歇山顶;(h)圆攒尖顶
(3)其它形式的屋面
随着科学技术的发展,出现了许多新型的屋面结构形式,如拱结构、薄壳结构、悬索结构、网架结构屋面等。这类屋面多用于较大跨度的公共建筑。


(a)双曲拱屋面;(b)砖石拱屋面;(c)球形网壳屋面;(d) V形网壳屋面;
(e)筒壳屋面;(f)扁壳屋面;(g)车轮形悬索屋面;(h)鞍形悬索屋面
2.屋面的作用及设计要求
(1)要求屋面起良好的围护作用,具有防水、保温和隔热性能。
(2)要求具有足够的强度、刚度和稳定性。
(3)满足人们对建筑艺术即美观方面的需求。
6.2屋面排水设计
1.屋面坡度选择
(1)屋面排水坡度的表示方法:①角度法;②斜率法;③百分比法。
坡屋面多采用斜率法,平屋面多采用百分比法,角度法应用较少。
(2)影响屋面坡度的因素
①屋面防水材料与排水坡度的关系
②降雨量大小与坡度的关系
③是否上人屋面
④排水路线的长短
(3)屋面坡度的形成方法
①材料找坡
<1>形成:指屋面坡度由垫坡材料形成。
<2>特点:排水坡度小,结构层(天棚面)底部平整,易于装修,但材料找坡增加屋面荷载,材料和人工消耗较多。
<3>找坡材料:如水泥炉渣、石灰炉渣等。
<4>找坡层的厚度:最薄处不小于20mm 。
<5>坡度:宜为2%。
②结构找坡
<1>形成:屋面结构自身带有排水坡度
<2>特点:无须在屋面上另加找坡材料,构造简单,不增加荷载,但天棚顶倾斜,室内空间不够规整。
<3>坡度:大于3%。


2.屋面排水方式
(1)排水方式
①无组织排水
无组织排水是指屋面雨水直接从檐口滴落至地面的一种排水方式,因为不用天沟、雨水管等导流雨水,故又称自由落水。主要适用于少雨地区或一般低层建筑,相邻屋面高差小于4m;不宜用于临街建筑和较高的建筑。
②有组织排水
有组织排水是指雨水经由天沟、雨水管等排水装置被引导至地面或地下管沟的一种排水方式。在建筑工程中应用广泛。
(2)排水方式选择
确定屋面排水方式应根据气候条件、建筑物的高度、质量等级、使用性质、屋面面积大小等因素加以综合考虑。
(3)有组织排水方案
在工程实践中,由于具体条件的千变万化,可能出现各式各样的有组织排水方案。现按外排水、内排水、内外排水三种情况归纳成9种不同的排水方案:


有组织排水方案
①外排水方案
外排水是指雨水管装设在室外的一种排水方案
<1>优点:雨水管不妨碍室内空间使用和美观,构造简单,因而被广泛采用。
<2>类型:挑檐沟外排水、女儿墙外排水、女儿墙挑檐沟外排水、长天沟外排水、暗管外排水。
②内排水方案
<1>适用情形:
在高层建筑中,因维修室外雨水管既不方便,更不安全。
在严寒地区也不适宜用外排水,因室外的雨水管有可能使雨水结冻,而处于室内的雨水管则不会发生这种情况。
<2>类型:
1)中间天沟内排水
当房屋宽度较大时,可在房屋中间设一纵向天沟形成内排水,这种方案特别适用于内廊式多层或高层建筑。雨水管可布置在走廊内,不影响走廊两旁的房间。
2)高低跨内排水
高低跨双坡屋面在两跨交界处也常常需要设置内天沟来汇集低跨屋面的雨水,高低跨可共用一根雨水管。
3.屋面排水组织设计
(1)确定排水坡面的数目(分坡)
一般情况下,临街建筑平屋面屋面宽度小于12m时,可采用单坡排水;其宽度大于12m时,宜采用双坡排水。坡屋面应结合建筑造型要求选择单坡、双坡或四坡排水。
(2)划分排水区
划分排水区的目的在于合理地布置水落管。排水区的面积是指屋面水平投影的面积,每一根水落管的屋面最大汇水面积不宜大于200m2。雨水口的间距在18~24m。
(3)确定天沟所用材料和断面形式及尺寸
天沟即屋面上的排水沟,位于檐口部位时又称檐沟。设置天沟的目的是汇集屋面雨水,并将屋面雨水有组织地迅速排除。天沟根据屋面类型的不同有多种做法。如坡屋面中可用钢筋混凝土、镀锌铁皮、石棉水泥等材料做成槽形或三角形天沟。平屋面的天沟一般用钢筋混凝土制作,当采用女儿墙外排水方案时,可利用倾斜的屋面与垂直的墙面构成三角形天沟;当采用檐沟外排水方案时,通常用专用的槽形板做成矩形天沟。


平屋面女儿墙外排水三角形天沟(a)女儿墙断面图;(b)屋面平面图


平屋面檐沟外排水矩形天沟
(a)挑檐沟断面;(b)屋面平面图
(4)确定水落管规格及间距
①材料:铸铁、镀锌铁皮、塑料、石棉水泥和陶土等,目前多采用铸铁和塑料水落管
②管径:有50mm、 75mm、100mm、125mm、150mm、200mm几种规格,一般民用建筑最常用的水落管直径为100mm,面积较小的露台或阳台可采用50mm或75mm的水落管。
③位置:应在实墙面处,其间距一般在18m以内,最大间距宜不超过24m,因为间距过大,则沟底纵坡面越长,会使沟内的垫坡材料增厚,减少了天沟的容水量,造成雨水溢向屋面引起渗漏或从檐沟外侧涌出。
6.3平屋面构造
平屋面按屋面防水层的不同有刚性防水、卷材防水、涂料防水及粉剂防水屋面等多种做法。构造上要求:
(1)屋面面层应采用不燃烧体材料,包括屋面突出部分及屋面加层,但一、二级耐火等级建筑物,其不燃烧体屋面基层上可采用可燃烧体卷材防水层。
(2)当无楼梯通达屋面时,应设上屋面的检修人孔或低于10m时可设外墙爬梯,并应有安全防护和防止儿童攀爬的措施。
(3)闷顶应设通风口和通向闷顶的检修人孔;闷顶内应有防火分隔。
(4)地震设防区或有强风地区的屋顶应采取固定加强措施等。
1.卷材防水屋面
(1)定义:卷材防水屋面,是指以防水卷材和粘结剂分层粘贴而构成防水层的屋面。
(2)特点:能较好地适应温度、振动等变化,整体性好,不易渗漏
(3)类型:沥青类卷材、高分子类卷材、高聚物改性沥青类卷材等。
(4)卷材防水屋面的构造层次和做法


卷材防水屋面的构造组成 油毡防水屋面做法
①结构层
通常为预制或现浇钢筋混凝土屋面板,要求具有足够的强度和刚度。
②找坡层(结构找坡和材料找坡)
材料找坡应选用轻质材料形成所需要的排水坡度,通常是在结构层上铺1:(6~8)的水泥焦渣或水泥膨胀蛭石等。
③找平层
柔性防水层要求铺贴在坚固而平整的基层上,因此必须在结构层或找坡层上设置找平层。
④结合层
结合层的作用是使卷材防水层与基层粘结牢固。
⑤防水层
防水层是由胶结材料与卷材粘合而成,卷材连续搭接,形成屋面防水的主要部分。当屋面坡度较小时,卷材一般平行于屋脊铺设,从檐口到屋脊层层向上粘贴,上下搭接不小于70mm,左右搭接不小于l00mm。
1)沥青类卷材:具有较好的防水性能,对屋面基层变形有一定的适应能力,但这种屋面施工麻烦、劳动强度大,且容易出现油毡鼓泡、沥青流淌、油毡老化等方面的问题,使油毡屋面的寿命大大缩短,平均10年左右就要进行大修。
2)新型防水卷材:主要有三元乙丙橡胶防水卷材、自粘型彩色三元乙丙复合防水卷材、聚氯乙烯防水卷材、氯化聚乙烯防水卷材、氯丁橡胶防水卷材及改性沥青油毡防水卷材等,这些防水材料的共同优点是自重轻,适用温度范围广,耐气候性好,使用寿命长,抗拉强度高,延伸率大,冷作业施工,操作简便,大大改善劳动条件,减少环境污染。
⑥保护层
1)不上人屋面保护层的做法:
绿豆砂保护层:当采用油毡防水层时为粒径3 ~ 6mm的小石子,绿豆砂要求耐风化、颗粒均匀、色浅;
氯丁银粉胶保护层:三元乙丙橡胶卷材采用银色着色剂,直接涂刷在防水层上表面;
2)上人屋面的保护层构造做法:通常可采用水泥砂浆或沥青砂浆铺贴缸砖、大阶砖、混凝土板等;也可现浇40mm厚C20细石混凝土。
2.柔性防水屋面细部构造
屋面细部是指屋面上的泛水、天沟、雨水口、檐口、变形缝等部位。
(1)泛水构造
泛水指屋面上沿所有垂直面所设的防水构造,突出于屋面之上的女儿墙、烟囱、楼梯间、变形缝、检修孔、立管等的壁面与屋面的交接处是最容易漏水的地方。必须将屋面防水层延伸到这些垂直面上,形成立铺的防水层,称为泛水。


卷材防水屋面泛水构造
(2)檐口构造
柔性防水屋面的檐口构造有无组织排水挑檐和有组织排水挑檐沟及女儿墙檐口等,挑檐和挑檐沟构造都应注意处理好卷材的收头固定、檐口饰面并做好滴水。女儿墙檐口构造的关键是泛水的构造处理,其顶部通常做混凝土压顶,并设有坡度坡向屋面。


檐口构造
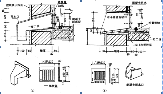
(3)雨水口构造
①类型:直管式雨水口、弯管式雨水口。
②构造要求:排水通畅、防止渗漏水堵塞。直管式雨水口为防止其周边漏水,应加铺一层卷材并贴入连接管内l00mm,雨水口上用定型铸铁罩或铅丝球盖住,用油膏嵌缝。弯管式雨水口穿过女儿墙预留孔洞内,屋面防水层应铺入雨水口内壁四周不小于l00mm,并安装铸铁蓖子以防杂物流人造成堵塞。


雨水口构造
(a)直管式雨水口;(b)弯管式雨水口
(4)屋面变形缝构造
①构造处理原则:既不能影响屋面的变形,又要防止雨水从变形缝渗入室内。
②位置:可设于同层等高屋面上,也可设在高低屋面的交接处。


等高屋面变形缝
(a)横向变形缝泛水之一;(b)横向变形缝泛水之二
2.刚性防水屋面
(1)定义:刚性防水屋面是指以刚性材料作为防水层的屋面。这种屋面具有构造简单、施工方便、造价低廉的优点,但对温度变化和结构变形较敏感,容易产生裂缝而渗水。故多用于我国南方地区的建筑。
(2)特点:构造简单,造价低,易开裂,对温度、基层变化很敏感
(3)类型:防水砂浆、细石混凝土、配筋细石混凝土防水屋面等
(4)构造层次及做法
①结构层
刚性防水屋面的结构层要求具有足够的强度和刚度,一般应采用现浇或预制装配的钢筋混凝土屋面板,并在结构层现浇或铺板时形成屋面的排水坡度。
②找平层
为保证防水层厚薄均匀,通常应在结构层上用20mm厚1:3水泥砂浆找平。若采用现浇钢筋混凝土屋面板或设有纸筋灰等材料时,也可不设找平层。
③隔离层
为减少结构层变形及温度变化对防水层的不利影响,宜在防水层下设置隔离层。隔离层可采用纸筋灰、低强度等级砂浆或薄砂层上干铺一层油毡等。当防水层中加有膨胀剂类材料时,其抗裂性有所改善,也可不做隔离层。
④防水层
常用配筋细石混凝土防水屋面的混凝土强度等级应不低于C20,其厚度宜不小于40mm,双向配置φ4~φ6.5钢筋,间距为100~200mm的双向钢筋网片。为提高防水层的抗渗性能,可在细石混凝土内掺入适量外加剂(如膨胀剂、减水剂、防水剂等)以提高其密实性能。
(5)刚性防水屋面细部构造
刚性防水屋面的细部构造包括屋面防水层的分格缝、泛水、檐口、雨水口等部位的构造处理。
①屋面分格缝
A、目的:1)防止温度变形引起防水层开裂;2)防止结构变形将防水层拉坏。
B、位置:应设置在温度变形允许的范围以内和结构变形敏感的部位。一般情况下分格缝间距不宜大于6m。结构变形敏感的部位主要是指装配式屋面板的支承端、屋面转折处、现浇屋面板与预制屋面板的交接处、泛水与立墙交接处等部位。


分格缝位置
C、构造要点:
1)防水层内的钢筋在分格缝处应断开;
2)屋面板缝用浸过沥青的木丝板等密封材料嵌填,缝口用油膏等嵌填;
3)缝口表面用防水卷材铺贴盖缝,卷材的宽度为200~ 300mm。


分格缝构造
(a)横向分格缝;(b)屋脊分格缝
②泛水构造
刚性防水屋面的泛水构造要点与卷材屋面基本相同。不同的地方是:刚性防水层与屋面突出物(女儿墙、烟囱等)间须留分格缝,另铺贴附加卷材盖缝形成泛水。
③檐口构造
1)自由落水挑檐口
根据挑檐挑出的长度,有直接利用混凝土防水层悬挑和在增设的现浇或预制钢筋混凝土挑檐板上做防水层等做法。无论采用哪种做法,都应注意做好滴水。
2)挑檐沟外排水檐口
檐沟构件一般采用现浇或预制的钢筋混凝土槽形天沟板,在沟底用低强度等级的混凝土或水泥炉渣等材料垫置成纵向排水坡度,铺好隔离层后再浇筑防水层,防水层应挑出屋面并做好滴水。
3)坡檐口
建筑设计中出于造型方面的考虑,常采用一种平顶坡檐即“平改坡”的处理形式,使较为呆板的平顶建筑具有某种传统的韵味,以丰富城市景观。


平屋面坡檐构造
④雨水口构造
1)直管式雨水口
直管式雨水口为防止雨水从雨水口套管与沟底接缝处渗漏,应在雨水口周边加铺柔性防水层并铺至套管内壁,檐口处浇筑的混凝土防水层应覆盖于附加的柔性防水层之上,并于防水层与雨水口之间用油膏嵌实。[直管式雨水口构造见下图]


直管式雨水口构造
(a)65型雨水口;(b)铁丝罩铸铁雨水口
2)弯管式雨水口
弯管式雨水口一般用铸铁做成弯头。雨水口安装时,在雨水口处的屋面应加铺附加卷材与=弯头搭接,其搭接长度不小于l00mm,然后浇筑混凝土防水层,防水层与弯头交接处需用油膏嵌缝。


弯管式雨水口构造
〔a)铸铁雨水口;(b)预制混凝土排水槽
6.4坡屋面构造


坡屋顶的组成
1.坡屋面的承重结构
(1)承重结构类型
坡屋面中常用的承重结构有横墙承重、屋架承重和梁架承重。


①横墙承重是指按屋面所要求的坡度,将横墙上部砌成三角形,在墙上直接搁置檩条来承受屋面重量的一种结构方式。
②屋架承重是指由一组杆件在同一平面内互相结合成整体屋架,在其上搁置檩条来承受屋面重量的一种结构方式。
③梁架承重是我国的传统结构形式,用柱与梁形成的梁架支承檩条,并利用檩条及连系梁(枋),使整个房屋形成一个整体的骨架,墙只起围护和分隔作用,民间传统建筑中多采用木柱、木梁、木枋构成的梁架结构。
(2)承重结构构件
①屋架
屋架形式常为三角形,由上弦、下弦及腹杆组成,所用材料有木材、钢材及钢筋混凝土等。


②檩条
檩条所用材料可为木材、钢材及钢筋混凝土,檩条材料的选用一般与屋架所用材料相同,使两者的耐久性接近。


檩条断面形式
(a)圆木檩条;(b)方木檩条;(c)槽钢檩条(d)混凝土檩条之一;
(e) 混凝土檩条之二;(f) 混凝土檩条之三
(3)承重结构布置
双坡屋面结构布置方式按开间尺寸等间距布置即可;
四坡屋面的结构布置,屋面尽端的三个斜面呈45°相交,采用半坡屋架一端支承在外墙上,另一端支承在尽端全屋架上;
屋面垂直相交处的结构布置有两种做法:一种是把插入屋面的檩条搁在与其垂直的屋面檩条上,另一种是用斜梁或半屋架一端支承在转角的墙上,另一端支承在屋架上;
屋面转角处,利用半屋架支承在对角屋架上。


屋架和檩条布置
2.瓦屋面构造
机制平瓦是由粘土焙烧而成,有普通平瓦和脊瓦之分。平瓦的规格为230mm和400mm,四边带有榫和沟槽,利用其相互搭扣密合,以防雨水从接缝渗入。脊瓦有阳角脊瓦和阴角脊瓦两种,专门用以处理屋脊和沟槽部位瓦的收头铺盖。为了减少雨水自瓦缝渗入,平瓦屋面坡度一般不宜小于1∶2(约26°),多雨地区则需更大些。


(1)冷摊瓦屋面 基层只设木椽条和木挂瓦条两种构件。构造简单,自重轻,但雨水易从瓦缝中浸入室内,通常仅用于防水等级不高的建筑。


(2)木望板瓦屋面 在平瓦的下部增设有木望板、防水卷材和固定卷材的顺水条,防水避风及保温效果比冷摊瓦屋面要改善许多,木望板瓦屋面多用于防水质量要求较高的建筑中。
(3)钢筋混凝土挂瓦板瓦屋面 挂瓦板可做成预应力或非预应力混凝土构件,此挂瓦板系板肋结构,小肋用以挂铺平瓦。在小肋的根部预留有泄水孔,直径约10~20mm,以便排除瓦面渗漏下的雨水。挂瓦板的断面形式有形、T形和F形等多种,板肋中距为300mm,板缝用1∶3水泥砂浆填实。这种钢筋混凝土挂瓦板是一种集檩条、望板和挂瓦条于一身的多功能构件,使用后可以节约大量木材,且构件的承载力和刚度均较好,尤其在木材短缺地区具有一定的推广价值。


3.油毡瓦屋面
油毡瓦是以玻纤毡为胎基的彩色块瓦状的防水片材,又称沥青瓦。油毡瓦屋面适用于防水等级为Ⅱ级、Ⅲ级的屋面防水。当油毡瓦单独使用时,可用于Ⅲ级的屋面防水;油毡瓦与防水卷材或防水涂膜复合使用时,可用于Ⅱ级的屋面防水。油毡瓦屋面的排水坡度不应小于20%。当屋面坡度大于150%时,应采取固定加强措施。
油毡瓦的施工环境宜为5~35℃,保管时温度不应超过40℃,不然容易熔化粘连,应避免雨淋、日晒、受潮,注意通风,远离火源。




油毡瓦屋面构造
4.瓦屋面细部构造
瓦屋面应做好檐口、天沟、屋脊等部位的细部构造。
(1)檐口构造
瓦屋面一般伸出外墙一段距离,以保护外墙免遭雨淋,挑出部分称为挑檐,也叫檐口。挑檐按所处位置不同分为纵墙挑檐和山墙挑檐。
①纵横檐口纵墙檐口设在纵墙挑出一侧,当屋面为四坡排水时,横墙挑檐口构造同纵墙。当出挑长度不大时,可直接将木基层或钢筋混凝土板挑出;当出挑长度较大时,可在屋架下方设挑檐木,或设钢筋混凝土挑梁。


②山墙檐口
山墙挑檐按屋面形式分为悬山、硬山、出山三种。
悬山屋顶是将屋面檩条向外悬挑一部分,故称悬山。挑檐上面覆瓦,下面做吊顶,端部做封檐板,也叫博封板。


硬山屋顶是将山墙升至屋顶包住屋面瓦材,山墙高度与屋面基本持平,当山墙高度高过屋面许多,就形成了出山屋顶。


硬山屋顶


出山屋顶
(2)天沟和斜沟构造
在等高和高低跨相交处常常出现天沟,而两个相互垂直的屋面相交处则形成斜沟。沟应有足够的断面积,上口宽度不宜小于300~500mm,一般用镀锌铁皮铺于木基层上,镀锌铁皮伸入瓦片下面至少150mm。高低跨和包檐口天沟若采用镀锌铁皮防水层时,应从天沟延伸至女儿墙上形成泛水。


天沟、斜沟构造
5.坡屋面的保温与隔热
(1)坡屋面保温构造
坡屋面的保温层一般布置在瓦材与檩条之间或吊顶棚上面。保温材料可根据工程具体要求选用松散材料、块材材料或板材材料。


坡屋面保温构造
(a)小青瓦保温屋面;(b)平瓦保温屋面;(c)保温吊顶棚
(2)坡屋面通风隔热构造
炎热地区在坡屋面中设进气口和排气口,利用屋面内外的热压差和迎风面的压力差,组织空气对流,形成屋面内的自然通风,以减少由屋面传入室内的辐射热,从而达到隔热降温的目的。进气口一般设在檐墙上、屋檐部位或室内顶棚上;出气口最好设在屋脊处,以增大高差,有利加速空气的流通。



