学习要求:掌握门窗的基本形式和适用范围,掌握木门窗、金属门窗、塑钢门窗等的构造,学会门窗的设置,了解门窗的节能。
重 点:掌握门窗的基本形式和适用范围,掌握铝合金门窗、塑钢门窗等的构造。
难 点:掌握铝合金门窗、塑钢门窗等的构造。
7.1窗
窗的主要作用是采光和日照,同时有眺望观景、分隔室内外空间和围护作用。还兼有美观作用。
1、按开启方式分:固定窗、平开窗、上悬窗、中悬窗、下悬窗、立转窗、水平推拉窗、垂直推拉窗等(图1)。


(a)固定窗固定窗;(b)平开窗;(c)上悬窗推拉窗;(d)中悬窗; (e)立转窗;(f)下悬窗;(g) 垂直推拉窗等;(h) 水平推拉窗
图1 窗的开启方式
2、按框料分:木窗、彩板钢窗、铝合金窗和塑料窗单一材料的窗。以及塑
钢窗、铝塑窗等复合材料的窗。
3、按层数分:单层窗和多层窗。
4、按镶嵌材料分:玻璃窗、百叶窗和纱窗。
窗的组成(图2)
窗框:又称窗樘,一般由上框、下框、中横框、中竖框及边框等组成。窗扇:由上冒头、中冒头(窗芯)、下冒头及边梃组成。
五金零件:铰链、风钩、插销、拉手及导轨、滑轮等。
附件:窗框与墙的连接处,为满足不同的要求,有时加设贴脸、窗台板、窗帘盒等。


图2 窗的组成
窗的尺度
1、要满足采光、通风与日照的需要(表1);
2、要符合建筑立面设计及建筑模数协调的要求。我国大部分地区标准窗的尺寸均采用3M的扩大模数,常用的高、宽尺寸有:600、900、1200、1500、1800、2100、2400mm等。
表l民用建筑采光等级表

平开木窗的构造
窗框
(1)窗框断面尺寸:应考虑接榫牢固,一般单层窗的窗框断面40~60mm,宽70~95mm,中横框上下均有裁口,断面高度应增加10mm,横框如有披水,断面尺寸应增加20mm。中竖框左右带裁口,应比边框增加10mm厚度。双层窗窗框的断面宽度应比单层窗宽20~30mm(图3)。
(2)窗框安装方式
塞口法:墙砌好后再安装窗框,采用塞口时洞口的高、宽尺寸应比窗框尺寸大10~30mm。
立口法:在砌墙前即用支撑先立窗框然后砌墙,框与墙的结合紧密,但是立樘与砌墙工序交叉,施工不便。


图3窗框断面形式及尺寸
(3)窗框在墙中的位置:(图4)
内平:窗框与墙内表面相平,采用较多。安装时框应突出砖面20mm,以便墙面粉刷后与抹灰面相平。框与抹灰面交接处,应用贴脸搭盖,以阻止由于抹灰干缩形成缝隙后风渗入室内,同时可增加美观,其形状尺寸与门贴脸板相同。
外平:窗框与墙外表面相平。
居中:窗框位于墙体厚度之间。
(4)窗框与窗扇的防水措施:内开窗的下口和外开窗的中横框处,都是防水的薄弱环节,仅设裁口条还不能防水,一般需做披水条和滴水槽,以防雨水内渗;在近窗台处做积水槽和泄水孔,以利于渗入之雨水排出窗外。


图4窗框在墙中的位置及防水处理
2、窗扇:常见的木窗扇有玻璃扇和纱窗扇。窗扇由上下冒头和边梃榫接而成,有的还用窗芯(也叫窗棂)分格(图5)。


图5玻璃窗扇的构造
断面形状与尺寸:窗扇一般厚度取35~42mm,以采用40mm者较多。纱窗扇的框料厚度可小些,一般为30mm左右。上冒头与边框的宽度取50~60mm,下冒头视需要可适当加宽l0~30mm。窗芯的宽度以27~35mm较多。窗扇的上下冒头、边梃和窗芯均设有裁口,以便安装玻璃或窗纱。
(2)玻璃的选择与安装:
玻璃类型:选择玻璃应兼顾窗的使用及美观要求。普通平板玻璃在民用建筑中应用最为广泛。为了保温、隔声需要,可选用双层中空玻璃;需遮挡或模糊视线的,可选用磨砂玻璃或压花玻璃;为了安全可选用夹丝玻璃、钢化玻璃或有机玻璃;为了防晒可采用有色、吸热和涂层、变色等种类的玻璃。
玻璃厚度:与窗扇分格的大小有关。单块面积小的,可选用薄的玻璃,一般2mm或3mm厚,单块面积较大时,可选用5mm或6mm厚的玻璃。
玻璃的安装:应先用小钉将玻璃卡牢,再用油灰嵌固。对于不会受雨水侵蚀的窗扇玻璃,也可用小木条镶钉。
铝合金窗
1、 铝合金门窗的用料
窗框:以窗框的厚度尺寸来区分各种铝合金窗的称谓。如平开窗窗框厚度构造尺寸为50mm宽即称为50系列铝合金平开窗。铝合金基本窗的最大洞口尺寸及开启扇尺寸与窗的形式及框料的用材有关见表2。
窗扇玻璃:普通平板玻璃、浮法玻璃、夹层玻璃、钢化玻璃及中空玻璃等。
2、铝合金窗的常见形式:固定窗、平开窗、滑轴窗、推拉窗、立轴窗和悬窗等,一般多采用水平推拉式。
表2铝合金窗最大洞口尺寸、最大开启扇尺寸(mm)

3、铝合金窗的安装:一般先在窗框外侧用螺钉固定钢质锚固件,安装时与洞口四周墙中的预埋铁件焊接或锚固在一起,玻璃是嵌固在铝合金窗料中的凹槽内,并加密封条。窗框固定铁件,除四周离边角150mm设一点外,一般间距不大于400~500mm。其连接方法有(图6):①采用墙上预埋铁件连接;②墙上预留孔洞埋入燕尾铁脚连接;③采用金属膨胀螺栓连接④采用射钉固定锚固铁件用厚度不小于1.5mm的镀锌铁片。窗框固定好后窗洞四周的缝隙一般采用软质保温材料填塞,如泡沫塑料条、泡沫聚氨酯条、矿棉毡条和玻璃丝毡条、聚氨酯发泡剂等。填实处用水泥砂浆抹留5-8mm
深的弧形槽。槽内嵌密封胶(图7)。


图6铝合金窗框与墙体的连接构造


图7铝合金门窗安装节点及缝隙处理
1、特点:以改性硬质聚氯乙烯(简称UPVC)为主要原料,加上一定比例的稳定剂、着色剂、填充剂、紫外线吸收剂等辅助剂,经挤出机挤出成型为各种断面的中空异型材。经切割后,在其内腔衬以型钢加强筋,用热熔焊接机焊接成型组装制作成门窗框、扇等,配装上橡胶密封条、压条、五金件等附件而制成的门窗。它较之全塑门窗刚度更好,自重更轻,造价适宜。塑钢门窗具有抗风压强度好、耐冲击、耐久性好、耐腐蚀、使用寿命长的等优点。
2、塑钢门窗的材料:异型材一般是中空的,为了提高门窗框、扇的热阻值,将排水孔道与补筋空腔分隔,可以做成为双腔室,以至多腔室(图8)。为了提高硬质聚氯乙烯中空异型材的刚性和窗扇窗框的抗风压强度,在塑料窗用主型材内腔中放入钢质或铝质异型材增强。


图8型材空腔的构造
3、塑钢推拉窗的常用形式:有固定窗、平开窗、水平悬窗与立式悬窗及推拉窗等。
4、塑钢门窗框与墙体的连接
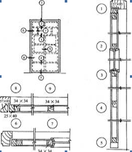
假框法:做一个与塑钢门窗框相配套的镀锌铁金属框,框材厚一般3mm,预先将其安装在门窗洞口上,抹灰装修完毕后再安装塑钢门窗。安装时将塑钢门窗送入洞口,靠住金属框后用自攻螺钉紧固。此外,旧木门窗,钢门窗更换为塑钢门窗时,可保留木框或钢框,在其上安装塑钢门窗,并用塑料盖口条装饰。
连接件法(图9a):门窗框通过固定铁件与墙体连接,先用自攻螺钉将铁件安装在门窗框上,然后将门窗框送入洞口定位。于定位设置的连接点处,穿过铁件预制孔,在墙体相对位置上钻孔,插入尼龙胀管,然后拧入胀管螺钉将铁件与墙体固定。也可以在墙体内预埋木砖,用木螺钉将固定铁件与木砖固定。这两种方法均须注意,联接窗框与铁件的自攻螺钉必须穿过加强衬筋或至少穿过门窗框型材两层型材壁,否则螺钉易松动,不能保证窗的整体稳定性。
直接固定法(图9b):即在墙体内预埋木砖,将塑钢门窗框送入窗洞口定位后,用木螺钉直接穿过门窗型材与木砖连接。
塑钢门窗固定后,门窗洞口和四周缝隙处理和铝合金窗相同。


(a)连接件法 (b)直接固定法
图9塑钢门窗窗框与墙体的连接节点
7.2 门
门的主要用途是交通联系和围护,门在建筑的立面处理和室内装修中也有着重要作用。
门的分类
1、按开启方式分类:平开门、弹簧门、推拉门、折叠门、转门等(图10)。
2、按门所用材料分:木门、钢门、铝合金门、塑料门及塑钢门等。
3、按门的功能分:普通门、保温门、隔声门、防火门、防盗门、人防门以及其他特殊要求的门等。


(a)平开门;(b)弹簧门;(c)推拉门;(d)折叠门;(e)转门;(f)卷帘门
图10门的开启方式
平开木门的组成(图11)
1、门框:又称门樘,由上槛、中槛和边框等组成,多扇门还有中竖框。
2、门扇:由上冒头、中冒头、下冒头和边梃等组成。为了通风采光,可在门的上部设亮子,有固定、平开及上、中、下悬等形式。
3、附件:门框与墙间的缝隙常用木条盖缝,称门头线(俗称贴脸)。
4、五金零件:铰链、门锁、插销、拉手、停门器,风钩等。


图11 平开木门的组成
尺度
1.平开木门的洞口尺寸可根据交通、运输以及疏散要求来确定。对于大型公共建筑,门的尺度可根据需另行确定。
2.一般情况下,门的宽度为:800~1000mm(单扇),1200~1800mm(双扇)。
3.门的高度一般不宜小于2100mm,有亮子时可适当增高300~600mm。
平开木门的构造
1、门框
(1)门框的断面形状和尺寸:门框的断面形状与窗框类似,但由于门受到的各种冲撞荷载比窗大,故门框的断面尺寸要适当增加(图12)。


图12门框的断面形状和尺寸(单位:mm)
(2)门框的安装:与窗框相同,分立口和塞口两种施工方法。工厂化生产的成品门,其安装多采用塞口法施工。
(3)门框与墙的关系:门框内平、门框居中和门框外平三种情况。一般情况下多做在开门方向一边,与抹灰面平齐,使门的开启角度较大。对较大尺寸的门,为牢固地安装,多居中设置(图13)。


(a)外平; (b)立中; (c)内平; (d)内外平
图13门框在墙洞中的位置
门框的墙缝处理:应比窗框更牢固。门窗靠墙一边开防止因受潮而变形的背槽,并做防潮处理。门框外侧的内外角做灰口,缝内填弹性密封材料。
(1) 夹板门
门扇由骨架和面板组成,骨架通常采用(32~35)mm×(34~36)mm的木料制做,内部用小木料做成格形纵横助条,肋距视木料尺寸而定,一般为300mm左右。在上部设小通气孔,保持内部干燥,防止面板变形。面板可用胶合板、硬质纤维板或塑料板等,用胶结材料双面胶结在骨架上。门的四周可用15~20mm厚的木条镶边,以取得整齐美观的效果。根据功能的需要,夹板门上也可以局部加玻璃或百叶,一般在装玻璃或百叶处,做一个木框,用压条镶嵌(图14)。


图14夹板门构造
(2) 镶板门
门扇由骨架和门芯板组成。骨架一般由上冒头、下冒头及边梃组成,有时中间还有中冒头或竖向中梃。门芯板可采用木板、胶合板、硬质纤维板及塑料板等。有时门芯板可部分或全部采用玻璃,则称为半玻璃(镶板)门或全玻璃(镶板)门。与镶板门类似的还有纱门、百叶门等。
镶板门门扇骨架的厚度一般为40~45mm。上冒头、中间冒头和边梃的宽度一般为75~120mm,下冒头的宽度习惯上同踢脚高度,一般为200mm左右。中冒头为了便于开槽装锁,其宽度可适当增加,以弥补开槽对中冒头材料的削弱(图15)。


图15镶板门的构造
铝合金门
铝合金门的特性与铝合金窗相同。铝合金门型材系列尺寸如表3所示。门的开启方式可以推拉,也可采用平开。铝合金门的构造及施工方法可参照铝合金窗的构造做法。
表3铝合金门型材尺寸(mm)


塑料门与塑钢门
塑料门与塑钢门的特性、材料、施工方法及细部构造可参照塑料窗与塑钢窗的构造做法。
7.3 其它门窗
彩板钢门窗
特点:以彩色镀锌钢板,经机械加工而成的门窗。它具有质量轻、硬度高、采光面积大、防尘、隔声、保温密封性好、造型美观、色彩绚丽、耐腐蚀等特点。
类型:带副框和不带副框的两种。当外墙面为花岗石、大理石等贴面材料时,常采用带副框的门窗。安装时,先用自攻螺钉将连接件固定在副框副框上,并用密封胶将洞口与副框及副框与窗樘之间的缝隙进行密封(图16)。当外墙装修为普通粉刷时,常用不带副框的做法,即直接用膨胀螺钉将门窗樘子固定在墙上(图17)。


图16 带副框彩板门窗 图17 不带副框彩板门
保温门窗
适用:对寒冷地区及冷库建筑,为了减少热损失,应做保温门窗。
设计要点:提高门窗的热阻,各减少冷空气渗透量。当室外温度低于零下20℃或建筑标准要求较高时,保温窗可采用双层窗,中空玻璃保温窗;保温门采用拼板门,双层门心板,门心板间填以保温材料,如毛毡、兽毛或玻璃纤维、矿棉等(图18)。


图18保温门构造
隔声门窗
适用:对录音室、电话会议室、播音室等应采用隔声门窗。
设计要点:为了提高门窗隔声能力,除铲口及缝隙需特别处理外,可适当增加隔声的构造层次;避免刚性连接,以防止连接处固体传声(图9-19);当采用双层玻璃时,应选用不同厚度的玻璃。


图9-19隔声门构造
防火门窗
分级:依据我国高层民用建筑防火规范规定,防火门可分为甲、乙、丙三级,其耐火极限分别为1.2h、0.9h、0.6h。
设计要点:防火门不仅应具有一定的耐火性能,且应关闭紧密、开启方便。防火门一般外包镀锌铁皮或薄刚板,美观性较差。常用防火门多为平开门、推拉门。它平时是敞开的,一旦发生火灾,须关闭且关闭后能从任何一侧手动开启。用于疏散楼梯间的门,应采用向疏散方向开启的单向弹簧门。当建筑物设置防火墙或防火门窗有困难时,可采用防火卷帘代替防火门,但必须用水幕保护(图20)。


图9-20防火门构造
7.4 玻璃幕墙
玻璃幕墙的分类
1、按构造方式分:有框和无框。在有框玻璃幕墙中,又有明框和隐框两种。近年来又出现了一种点支承玻璃幕墙,即玻璃面板通过点支承装置与其支承结构组成的幕墙。
2、按施工方法分:现场组装(构件式幕墙)和预制装配(单元式幕墙)。有框玻璃幕墙可现场组装,也可预制装配,而无框玻幕墙和点支承玻璃幕墙则只能现场组装。
玻璃幕墙构造(图21)


图21 构件式玻璃幕墙示意图
1、金属框的断面:金属边框可用铝合金、铜合金、不锈钢等型材制作。铝型材(图22)有实腹和空腹两种。空腹型材节约材料,对抗风有利。


(a)竖梃之一(用于明框);(b)竖梃之二(用于明框);(c)竖挺之三(用于隐框); (d)横档之一(用于明框);(e)横档之二(用于明框);(f)横档之三(用于隐框)
图22玻璃幕墙铝框型材断面图
2、连接方式
(1)竖梃与楼板的连接:竖梃通过连接件固定在楼板上,连接件的设计与安装,要考虑竖梃能在上下、左右、前后三个方向均可调节移动,所以连接件上的所有螺栓孔都设计成椭圆形的长孔(图23)。


图23玻璃幕墙连接件示例
(2)竖梃与横档的连接:竖梃与横档通过角形铝铸件或专用铝型材连接。铝角与竖梃、铝角与横档均用螺栓固定(图24a、b)。


(a)竖梃与横档的连接(用于明框);(b)竖梃与横档的连接(用于隐框);(c)竖梃与楼板的连接
图24幕墙铝框连接构造
(3)竖梃与竖梃的连接:铝合金型材一般的供货长度是6000mm,但通常玻璃幕墙的竖梃依一个层间高度来划分,即竖梃的高度等于层高。因此,相邻层间的竖梃需要通过套筒来连接,竖梃与竖梃之间应留有15~20mm的空隙,以解决金属的热胀问题。考虑到防水,还需用密封胶嵌缝(图24c)。
3、明框幕墙的玻璃安装:玻璃是镶嵌在竖梃、横档等金属框上,并用金属压条卡住。玻璃与金属框接缝处的防水构造处理是保证幕墙防风雨性能的关键部位。接缝构造目前国内外采用的方式有三层构造层,即密封层、密封衬垫层、空腔(图25)。


图25明框玻璃与铝框的连接实例
4、隐框幕墙玻璃板块的制作与安装:金属框隐蔽在玻璃背面。需要制作一个从外面看不见框的玻璃板块,然后采用压块、挂钩等方式与幕墙的主体结构连接(图26)。


(a)压块连接;(b)挂钩连接
图26隐框幕墙玻璃板块安装图
7.5 遮阳设施
绿化遮阳
对于低层建筑来说,绿化遮阳是一种经济而美观的措施。
简易设施遮阳
其特点是制作简易、经济、灵活、拆卸方便,但耐久性差。简易设施可用苇席、布篷、百页窗、竹帘、塑料等(图27)。


图27简易设施遮阳
建筑构造遮阳
主要是设置各种形式的遮阳板图(图28)。选择和设置遮阳设施时,应尽量减少对房间的采光和通风的影响。采用各种形式的遮阳板时,需与建筑的立面处理统一考虑。


图28遮阳形式
水平式:能够遮挡太阳高度角较大,从窗上方照射的阳光,适于南向及接近南向的窗口。
垂直式:能够遮挡太阳高度角较小,从窗两侧斜射的阳光,适用于东、西及接近东、西朝向的窗口。
综合式:包含有水平及垂直遮阳,能遮挡窗上方及左右两侧的阳光,故适用南、东南、西南及其附近朝向的窗口。
挡板式:能够遮挡太阳高度角较小,正射窗口的阳光,适于东、西向的窗口。
